0
in Vendita

Alassio, prima collina, terreno con progetto in fase di approvazione, per villetta.

90.000 Alassio Terreno Edificabile M2 70 05VE6
Condividi
Caratteristiche
  • M2 70
  • Piano
  • Bagni 2
  • Box/Posto auto Doppio
  • Terrazzo NO
  • Balconi SI
  • Ascensore NO
  • Giardino SI
Descrizione

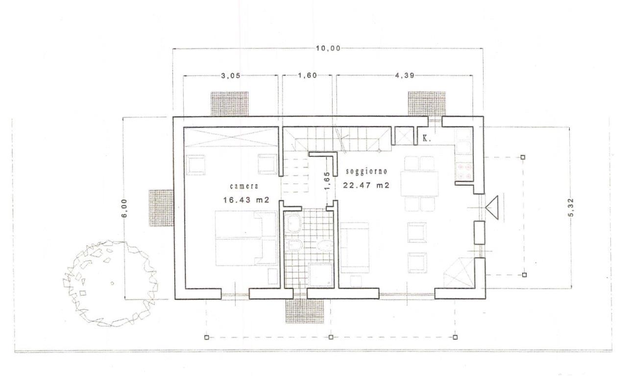
Alassio, sulla collina di moglio, vendesi terreno, totalmente vista mare, di 3.200 mq. con un progetto in attesa di essere portato a termine, con eventuali variazioni dell'acquirente del terreno, per poi farlo approvare definitivamente, per costruire una villetta su tre livelli, uno interrato + 2 fuori terra. nel piano interrato è previsto un box di 33 mq., una taverna/locale di sgombero di 47 mq., una cantina di 15 mq., salendo internamente al piano terra, si prevede un soggiorno con angolo cottura, una camera e un bagno, proseguendo al piano superiore, sotto tetto, due locali di sgombero di 12 mq. ognuno, disimpegno, un bagno e un terrazzino.

Alassio, prima collina, terreno con progetto in fase di approvazione, per villetta.

Alassio Terreno Edificabile M2 70 05VE6
Condividi
Immobili simili Ti potrebbero interessare anche questi...